Çelik rulo dilme hatlarıalüminyum, paslanmaz çelik, soğuk haddelenmiş çelik, sıcak haddelenmiş çelik, silikon çelik ve PPGI gibi çeşitli metal malzemeleri rulo açma, dilme ve geri sarma gibi işlemlerle işler. Müşteri spesifikasyonlarına uygun dar şeritler üretebilmektedirler. Çelik rulo dilme makinelerine yönelik pazar talebi arttıkça, müşteri üretim ölçekleri genişlemeye devam ettikçe ve çeşitli projeler ortaya çıktıkça, müşteri ihtiyaçlarını karşılamak için çeşitli tiplerde çelik rulo dilme hatları piyasaya sürüldü. Bu makale, çelik rulo dilme makinelerinin daha derinlemesine anlaşılmasını sağlamayı umarak, çelik rulo dilme hatlarına ayrıntılı bir giriş sağlayacaktır.
A çelik bobin dilme hattıgeniş şeritleri yüksek hız ve hassasiyetle istenilen genişlik veya uzunlukta açmak ve kesmek için tasarlanmış otomatik bir bobin işleme ekipmanıdır. Modern çelik rulo dilme hatları, yüksek hassasiyetli ve verimli üretim süreçlerini optimize etmek için tipik olarak rulo açma, dilme, geri sarma, otomatik takım değiştirme ve besleme ve istifleme sistemlerini entegre eder. Titizlikle tasarlanmış bir dairesel çelik bobin dilme makinesi kullanan çelik bobin dilme hatları, metal işleme endüstrisinde yaygın olarak kullanılmaktadır ve güvenilirlikleri ve verimlilikleri nedeniyle popülerdir.
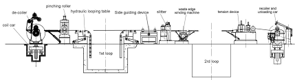
●Çelik Rulo Dilme Makinasının Ana Bileşenleri
Çelik rulo dilme hatları tipik olarak üç ana rulo taşıma sistemini içerir:
Çözme sistemi: Yüzey kalitesini iyileştirmek için geniş bobinleri yükler ve düzeltir.
Dilme sistemi: Geniş bobini kesici alet yardımıyla istenilen genişlikte dar şeritler halinde keser.
Geri sarma sistemi: Kesilen şeritleri geri sarar ve bunları bir istifleme aletinde toplar.
Bu yapı, çelik rulo dilme makinelerinin, ikincil işlemlere veya diğer son işlem ekipmanlarına ihtiyaç duymadan büyük miktarlarda ürünleri hızlı bir şekilde üretmesini sağlar.
![]() |
![]() |

Sarma → Çözme → Yönlendirme → Sıkıştırma ve Kaba Tesviye → Kesme → Hurda Toplama → Sallanan Köprü → Web Düzeltme ve Besleme → Dilme → Hurda Sarma → Sallanan Köprü → Germe İstasyonu → Geri Sarma → Boşaltma
3.1 Çelik bobin dilme hattının çözülmesi
Bir parçanın çözülmesi işlemi sırasındaçelik bobin dilme makinesiBazı çelik rulo dilme hatlarında, özel profiller oluşturmak için bükme veya deformasyon gerektiren ruloları işlemek için bir geri sarma sistemi kullanılır. Geri sarma sistemi, kesilmiş bobinlerin makaraya demetlenmesine olanak tanıyarak bitmiş ürünün kalitesini ve stabilitesini sağlar.
Açıcının tasarımı, genişlikleri 40 ila 60 cm arasında değişen metal bobinleri işlemesine olanak tanır. Daha büyük iç çapa sahip malzemeler için dolgu levhaları verimliliği artırabilir. Doldurma halkaları, daha büyük iç çaplı bobinleri taşımak için yaygın olarak kullanılır.
3.2 Çelik rulo dilme hattı için dilme
Dilme işlemi sırasında metal bobin kesim alanına yüklenerek iki paralel mandrel ve titizlikle işlenmiş döner kesicilerle kesilir. Çelik bobin dilme makinesinin kesme doğruluğu, nihai ürünün kalitesini doğrudan etkiler; bu nedenle kesicilerin seçimi ve kesme parametrelerinin ayarlanması çok önemlidir.
Kesme işlemi sırasında kenar düzeltme ve atıkların işlenmesi de aynı derecede önemlidir. Modern çelik rulo dilme hatları, üretim sırasında atığı etkili bir şekilde yönetmek için genellikle kauçuk sıyırma halkaları ve atık makarasıyla donatılmıştır. Atık makarası, atıkları gerilim altında toplayarak verimli çalışma sağlar.
3.3 Çelik bobin dilme makinesi için geri sarma
Bazı çelik rulo dilme hatlarında, özel profiller oluşturmak için bükme veya deformasyon gerektiren ruloları işlemek için bir geri sarma sistemi kullanılır. Geri sarma sistemi, kesilmiş bobinlerin makaraya demetlenmesine olanak tanıyarak bitmiş ürünün kalitesini ve stabilitesini sağlar.
Çelik rulo dilme hatlarıaşağıdakiler dahil ancak bunlarla sınırlı olmamak üzere çeşitli endüstrilerde yaygın olarak kullanılmaktadır:
Otomotiv imalatında çelik rulo dilme makinesi: Gövde yapısal parça ve aksesuarlarının üretiminde kullanılır.
İnşaat sektöründe çelik rulo dilme hattı: Kapı ve pencere çerçeveleri, yapısal destekler ve diğer uygulamalar için metal malzemeler sağlar.
Elektrikli cihaz imalatında çelik rulo dilme hattı: Cihaz gövdeleri ve iç aksamlarının üretiminde kullanılır.
Ev aletleri sektöründe çelik rulo dilme makinesi: Ev aletleri için metal parçalar ve yapısal destekler sağlar.
Çelik rulo dilme hatlarına yönelik pazar talebinin artmasıyla birlikte, farklı müşterilerin üretim ihtiyaçlarını karşılamak için çeşitli yeni tipte çelik rulo dilme makineleri ortaya çıktı.
![]() |
![]() |